Home > Case in vendita > VILLE in vendita a Monte Cremasco
< Torna all'elenco Richiedi Informazioni

VILLE in vendita a Monte Cremasco

€ 425.000,00

Casa in vendita

CODICE: 105

Tipologia: VILLE

Località: Monte Cremasco

Superficie: 140 mq

Anno di costruzione: 2026

Stato: Nuovo

Piano: terra e primo

N° Locali: 4

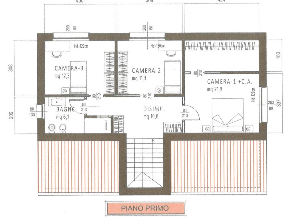
N° Camere da letto: 3

N° Bagni: 2

Terrazzo:

Balconi:

Giardino:

Classe Energetica: A4

Indice Prestazione Energetica: come da progetto

Villa Singola in Classe A4 - Un Sogno da Vivere!
Scopri questa splendida villa singola, un vero gioiello in classe energetica A4, situata in una zona tranquilla e immersa nel verde. Con una superficie di 140 metri quadri distribuiti su due livelli, questa casa è perfetta per chi cerca comfort e modernità. Al piano terra, un ampio soggiorno luminoso si apre su una cucina a vista, ideale per condividere momenti con amici e familiari, completa il piano un comodo bagno.
Salendo al primo piano, trovi tre spaziose camere da letto insieme a un secondo bagno ben rifinito. La villa è circondata da un giardino che si estende su tre lati, offrendo uno spazio verde dove rilassarsi e godere della natura. Inoltre, il box auto è comodo e può ospitare fino a due veicoli.
La casa è dotata di riscaldamento a pavimento con pompa di calore e un impianto fotovoltaico da 3 Kw, garantendo un'ottima efficienza energetica. Gli infissi in PVC con doppio vetro e le tapparelle coibentate assicurano un isolamento ottimale. Non mancano zanzariere in alluminio e predisposizione per allarme e climatizzatore, per vivere in totale sicurezza e comfort.
Tempi di consegna: 12 mesi dal preliminare.

Non trovi il tuo immobile?

Clicca qui

E' tutto molto semplice!
Compila il questionario e ti terremo aggiornato sulle proposte più coerenti alla tua richiesta!

Copyright © Immobiliare le Fondamenta | Sito web creato da Xbacco Solution


TOP